Top.Mail.Ru

улица Коненкова, д. 12

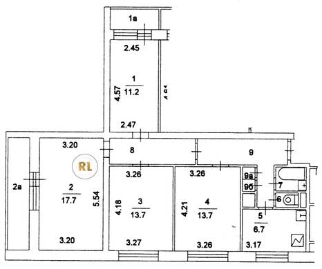
База каталог, Кол-во подъездов: 8, I605-АМ, Москва, Бибирево, Площадь парковки: 0, Пассажирский лифт: 16, От метро: 1230, Северо-Восточный, нет, Наименьшее кол-во этажей: 12, Наибольшее кол-во этажей: 12, Бибирево, Кол-во помещений: 392, Кол-во нежилых помещений: 9, Год ввода в эксплуатацию: 1974, 4-комн, Кол-во жилых помещений: 383, Не присвоен, дом 12, нет, да, да, да, да, нет, Грузовых лифтов: 0, Год постройки: 1974, улица Коненкова, 37.611769, 55.892607
Свяжитесь со мной на счет цены
10 дн.
V55S892607L37S611769V

На карте


Условия сделки

Источник


Старт продаж

Возможно заинтересует