Top.Mail.Ru

Студеный проезд, д. 32, к. 1

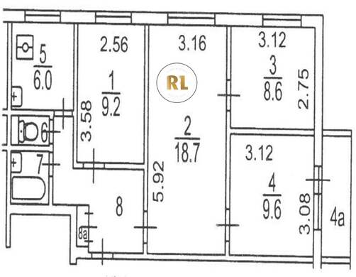
База каталог, Кол-во подъездов: 6, II-49Д, Москва, Северное Медведково, Площадь парковки: 0, Пассажирский лифт: 6, От метро: 1010, Северо-Восточный, нет, Наименьшее кол-во этажей: 9, Наибольшее кол-во этажей: 9, Медведково, Кол-во помещений: 215, Кол-во нежилых помещений: 0, Год ввода в эксплуатацию: 1972, 4-комн, Кол-во жилых помещений: 215, Не присвоен, дом 32, корпус 1, нет, да, да, да, да, да, Грузовых лифтов: 0, Год постройки: 1972, Студеный проезд, 37.669648, 55.892617
Свяжитесь со мной на счет цены
10 дн.
V55S892617L37S669648V

На карте


Условия сделки

Источник


Старт продаж

Возможно заинтересует