Top.Mail.Ru

улица Коненкова, д. 19В

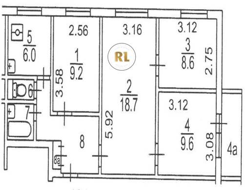
База каталог, Кол-во подъездов: 6, II-49-06, Москва, Бибирево, Площадь парковки: 0, Пассажирский лифт: 6, От метро: 1250, Северо-Восточный, нет, Наименьшее кол-во этажей: 9, Наибольшее кол-во этажей: 9, Бибирево, Кол-во помещений: 221, Кол-во нежилых помещений: 7, Год ввода в эксплуатацию: 1974, 4-комн, Кол-во жилых помещений: 214, А, дом 19В, нет, да, да, да, да, нет, Грузовых лифтов: 0, Год постройки: 1974, улица Коненкова, 37.606721, 55.893122
Свяжитесь со мной на счет цены
10 дн.
V55S893122L37S606721V

На карте


Условия сделки

Источник


Старт продаж

Возможно заинтересует