Top.Mail.Ru

улица Коненкова, д. 14

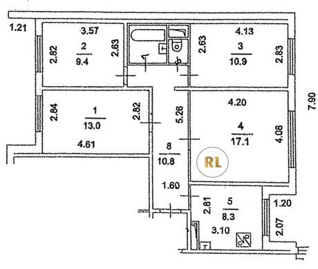
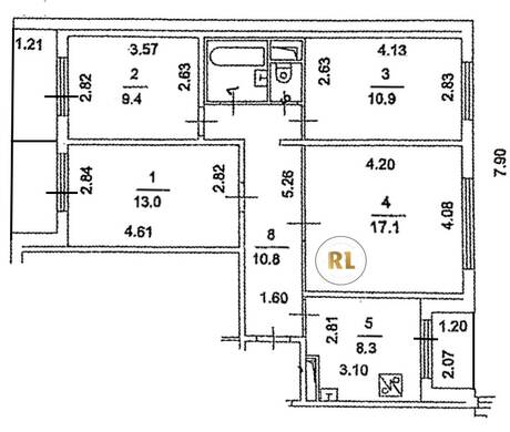
База каталог, Кол-во подъездов: 6, П-30, Москва, Бибирево, Площадь парковки: 0, Пассажирский лифт: 12, От метро: 1540, Северо-Восточный, нет, Наименьшее кол-во этажей: 12, Наибольшее кол-во этажей: 12, Бибирево, Кол-во помещений: 305, Кол-во нежилых помещений: 19, Год ввода в эксплуатацию: 1975, 4-комн, Кол-во жилых помещений: 286, А, дом 14, нет, да, да, да, да, нет, Грузовых лифтов: 0, Год постройки: 1975, улица Коненкова, 37.613512, 55.893657
Свяжитесь со мной на счет цены
10 дн.
V55S893657L37S613512V

На карте


Условия сделки

Источник


Старт продаж

Возможно заинтересует