Top.Mail.Ru

Студеный проезд, д. 1, к. 1

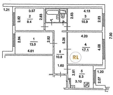
База каталог, Кол-во подъездов: 2, П-30, Москва, Северное Медведково, Площадь парковки: 0, Пассажирский лифт: 4, От метро: 860, Северо-Восточный, нет, Наименьшее кол-во этажей: 14, Наибольшее кол-во этажей: 14, Медведково, Кол-во помещений: 113, Кол-во нежилых помещений: 3, Год ввода в эксплуатацию: 1990, 4-комн, Кол-во жилых помещений: 110, Не присвоен, дом 1, корпус 1, нет, да, да, да, да, да, Имеется, Грузовых лифтов: 0, Год постройки: 1990, Студеный проезд, 37.657556, 55.893975
Свяжитесь со мной на счет цены
10 дн.
V55S893975L37S657556V

На карте


Условия сделки

Источник


Старт продаж

Возможно заинтересует