Top.Mail.Ru

Мурановская ул., д. 13

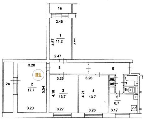
База каталог, Кол-во подъездов: 8, I605-АМ, Москва, Бибирево, Площадь парковки: 0, Пассажирский лифт: 16, От метро: 1010, Северо-Восточный, нет, Наименьшее кол-во этажей: 12, Наибольшее кол-во этажей: 12, Алтуфьево, Кол-во помещений: 383, Кол-во нежилых помещений: 0, Год ввода в эксплуатацию: 1974, 4-комн, Кол-во жилых помещений: 383, А, дом 13, нет, да, да, да, да, да, Грузовых лифтов: 0, Год постройки: 1974, Мурановская улица, 37.599777, 55.894202
Свяжитесь со мной на счет цены
10 дн.
V55S894202L37S599777V

На карте


Условия сделки

Источник


Старт продаж

Возможно заинтересует