Top.Mail.Ru

Мурановская ул., д. 17Б

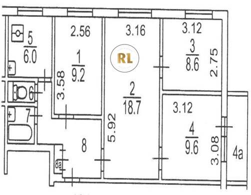
База каталог, Кол-во подъездов: 10, II-49-06, Москва, Бибирево, Площадь парковки: 0, Пассажирский лифт: 10, От метро: 740, Северо-Восточный, нет, Наименьшее кол-во этажей: 9, Наибольшее кол-во этажей: 9, Алтуфьево, Кол-во помещений: 368, Кол-во нежилых помещений: 10, Год ввода в эксплуатацию: 1974, 4-комн, Кол-во жилых помещений: 358, А, дом 17Б, нет, да, да, да, да, да, Грузовых лифтов: 0, Год постройки: 1974, Мурановская улица, 37.597450, 55.895439
Свяжитесь со мной на счет цены
10 дн.
V55S895439L37S597450V

На карте


Условия сделки

Источник


Старт продаж

Возможно заинтересует