Top.Mail.Ru

улица Лескова, д. 22

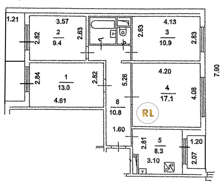
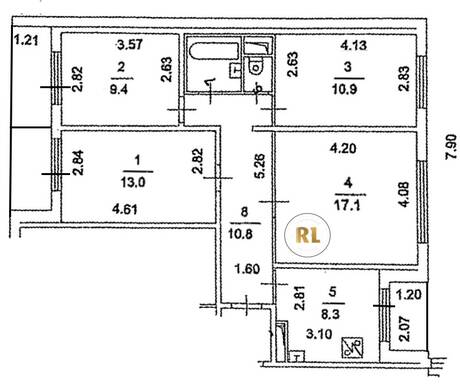
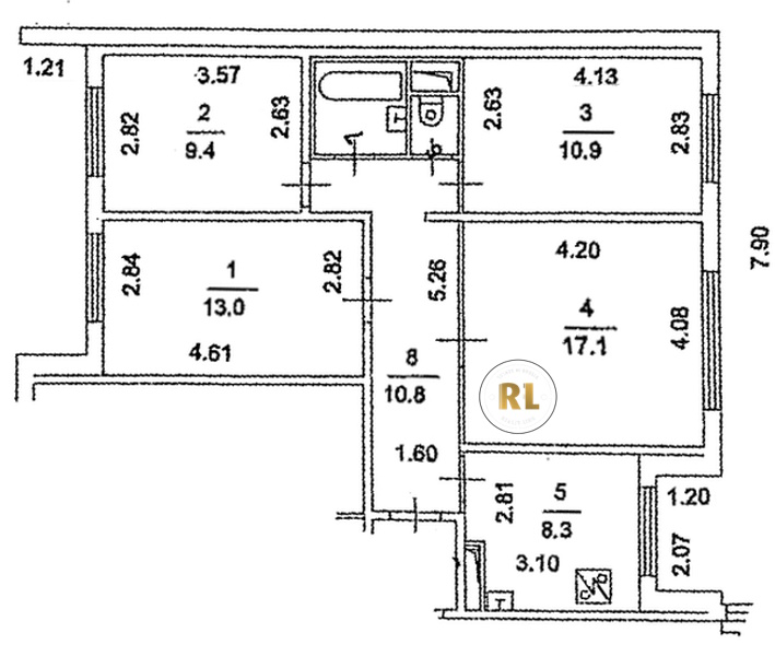
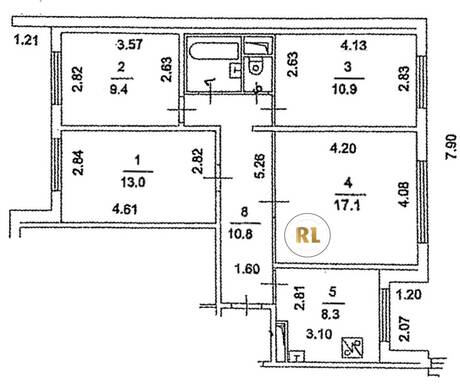
База каталог, Кол-во подъездов: 8, П-30, Москва, Бибирево, Площадь парковки: 0, Пассажирский лифт: 16, От метро: 1540, Северо-Восточный, нет, Наименьшее кол-во этажей: 12, Наибольшее кол-во этажей: 12, Алтуфьево, Кол-во помещений: 386, Кол-во нежилых помещений: 13, Год ввода в эксплуатацию: 1977, 4-комн, Кол-во жилых помещений: 373, А, дом 22, нет, да, да, да, да, нет, Грузовых лифтов: 0, Год постройки: 1977, улица Лескова, 37.609146, 55.896337
Свяжитесь со мной на счет цены
10 дн.
V55S896337L37S609146V

На карте


Условия сделки

Источник


Старт продаж

Возможно заинтересует