Top.Mail.Ru

Белозерская ул., д. 3А

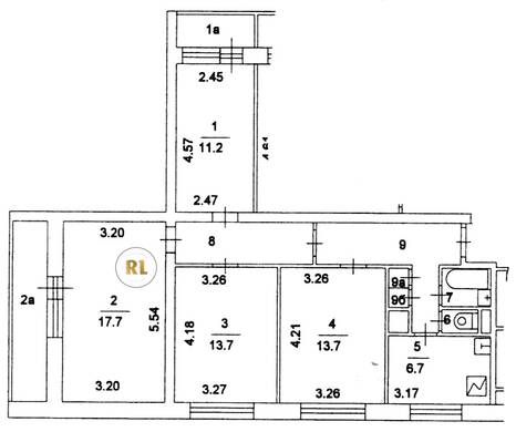
База каталог, Кол-во подъездов: 4, I605-АМ, Москва, Бибирево, Площадь парковки: 0, Пассажирский лифт: 8, От метро: 1560, Северо-Восточный, нет, Наименьшее кол-во этажей: 12, Наибольшее кол-во этажей: 12, Алтуфьево, Кол-во помещений: 196, Кол-во нежилых помещений: 6, Год ввода в эксплуатацию: 1975, 4-комн, Кол-во жилых помещений: 190, Не присвоен, дом 3А, нет, да, да, да, да, нет, Грузовых лифтов: 0, Год постройки: 1975, Белозерская улица, 37.610610, 55.899603
Свяжитесь со мной на счет цены
10 дн.
V55S899603L37S610610V

На карте


Условия сделки

Источник


Старт продаж

Возможно заинтересует