Top.Mail.Ru

Белозерская ул., д. 1А

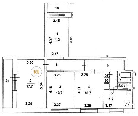
База каталог, Кол-во подъездов: 6, I605-АМ, Москва, Бибирево, Площадь парковки: 0, Пассажирский лифт: 12, От метро: 1480, Северо-Восточный, нет, Наименьшее кол-во этажей: 12, Наибольшее кол-во этажей: 12, Алтуфьево, Кол-во помещений: 296, Кол-во нежилых помещений: 9, Год ввода в эксплуатацию: 1975, 4-комн, Кол-во жилых помещений: 287, В+, дом 1А, нет, да, да, да, да, нет, Грузовых лифтов: 0, Год постройки: 1975, Белозерская улица, 37.608940, 55.900345
Свяжитесь со мной на счет цены
10 дн.
V55S900345L37S608940V

На карте


Условия сделки

Источник


Старт продаж

Возможно заинтересует