Top.Mail.Ru

Псковская ул., д. 12, к. 2

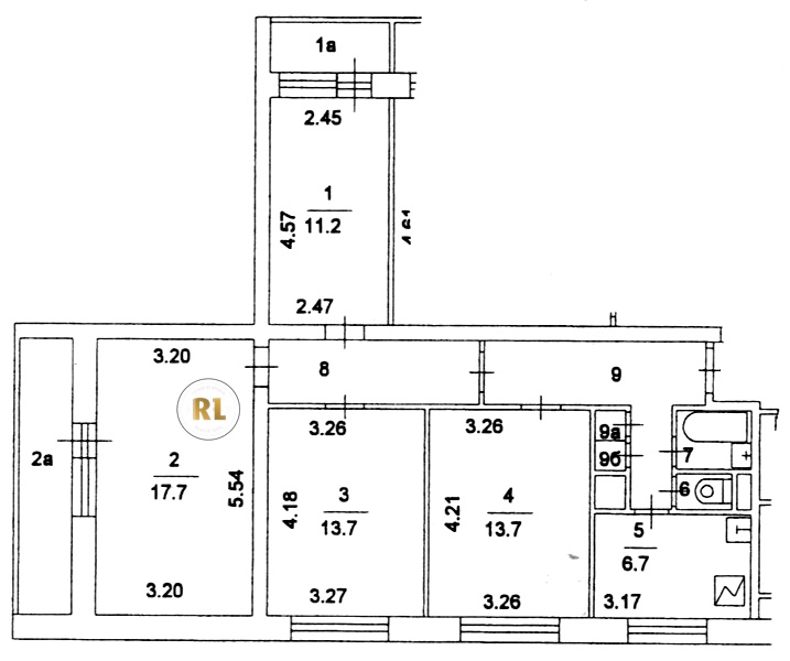
База каталог, Кол-во подъездов: 4, I605-АМ, Москва, Лианозово, Площадь парковки: 0, Пассажирский лифт: 8, От метро: 2410, Северо-Восточный, нет, Наименьшее кол-во этажей: 12, Наибольшее кол-во этажей: 12, Алтуфьево, Кол-во помещений: 191, Кол-во нежилых помещений: 0, Год ввода в эксплуатацию: 1982, 4-комн, Кол-во жилых помещений: 191, Не присвоен, дом 12, корпус 2, нет, да, да, нет, нет, нет, Имеется, Грузовых лифтов: 0, Год постройки: 1982, Псковская улица, 37.554439, 55.904609
Свяжитесь со мной на счет цены
10 дн.
V55S904609L37S554439V

На карте


Условия сделки

Источник


Старт продаж

Возможно заинтересует