Top.Mail.Ru

Челобитьевское шоссе, д. 14, к. 1

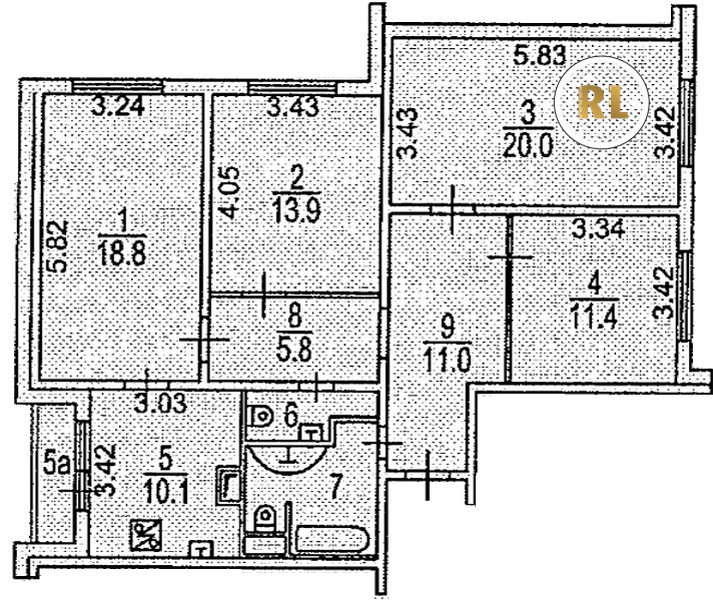
База каталог, Кол-во помещений: 324, Имеется, КОПЭ, Москва, Северный, Площадь парковки: 0, Пассажирский лифт: 8, От метро: 3400, Северо-Восточный, нет, Наименьшее кол-во этажей: 18, Наибольшее кол-во этажей: 22, Алтуфьево, Кол-во подъездов: 4, Год ввода в эксплуатацию: 2007, Кол-во нежилых помещений: 4, 4-комн, Кол-во жилых помещений: 320, дом 14, корпус 1, нет, нет, нет, нет, нет, нет, Имеется, Грузовых лифтов: 4, Год постройки: 2007, Челобитьевское шоссе, 37.551591, 55.912592
Свяжитесь со мной на счет цены
10 дн.
V55S912592L37S551591V

На карте


Условия сделки

Источник


Старт продаж

Возможно заинтересует