Top.Mail.Ru

Челобитьевское шоссе, д. 12, к. 6

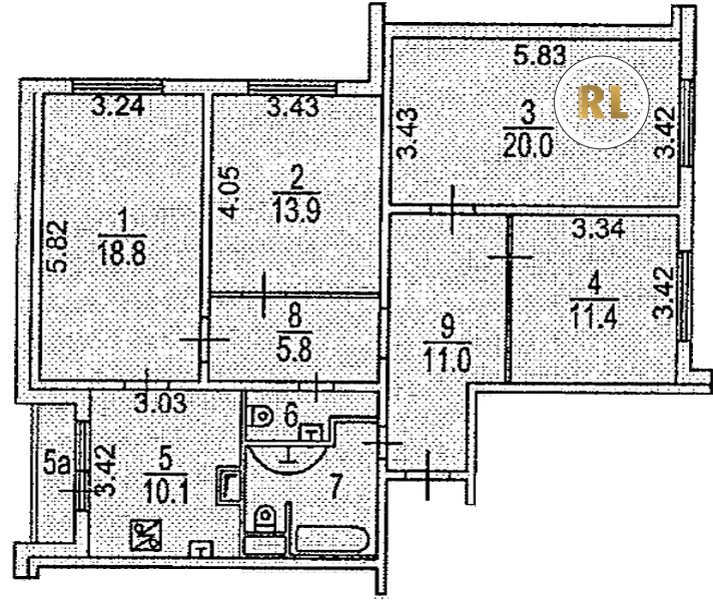
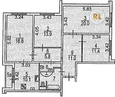
База каталог, Кол-во подъездов: 1, Имеется, КОПЭ, Москва, Северный, Пассажирский лифт: 2, От метро: 3600, Северо-Восточный, да, Наименьшее кол-во этажей: 22, Наибольшее кол-во этажей: 22, Алтуфьево, Кол-во помещений: 148, Кол-во нежилых помещений: 1, Год ввода в эксплуатацию: 2007, 4-комн, Кол-во жилых помещений: 147, дом 12, корпус 6, нет, нет, нет, нет, нет, нет, Имеется, Грузовых лифтов: 1, Год постройки: 2007, Челобитьевское шоссе, 37.547953, 55.912768
Свяжитесь со мной на счет цены
10 дн.
V55S912768L37S547953V

На карте


Условия сделки

Источник


Старт продаж

Возможно заинтересует