Top.Mail.Ru

улица Герасима Курина, д. 2

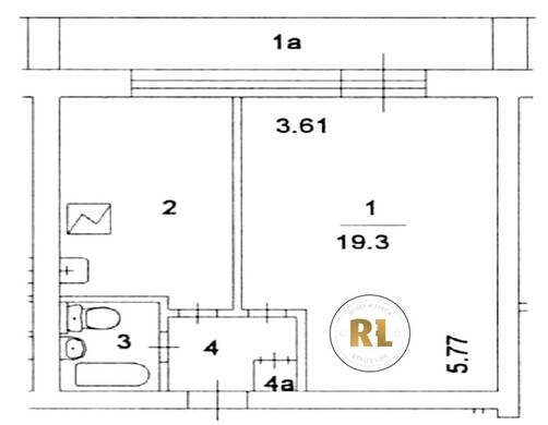
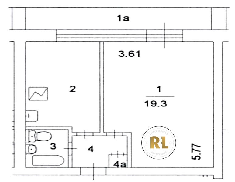
База каталог, Кол-во подъездов: 1, нет, II-68-01, Москва, Фили-Давыдково, Площадь парковки: 0, Нет, Пассажирский лифт: 1, От метро: 780, Западный, нет, Наименьшее кол-во этажей: 1, Наибольшее кол-во этажей: 8, Филёвский парк, Кол-во помещений: 66, Кол-во нежилых помещений: 2, Год ввода в эксплуатацию: 1959, 1-комн, Кол-во жилых помещений: 64, А, Нет, дом 2, нет, да, да, да, да, да, Грузовых лифтов: 0, Нет, Год постройки: 1959, улица Герасима Курина, 37.487308, 55.733675
Свяжитесь со мной на счет цены
10 дн.
O55S733675L37S487308O

На карте


Условия сделки

Источник


Старт продаж

Возможно заинтересует