Top.Mail.Ru

Перовская ул., д. 36, к. 4

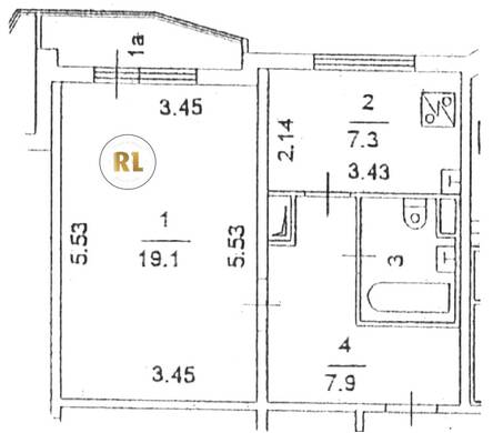
База каталог, Пассажирский лифт: 3, Перово, Наибольшее кол-во этажей: 17, Наименьшее кол-во этажей: 17, нет, Восточный, От метро: 1140, Нет, Кол-во подъездов: 3, Площадь парковки: 0, Перово, Москва, П-44T, Отсутствует, нет, Кол-во помещений: 0, Кол-во нежилых помещений: 0, Год ввода в эксплуатацию: 2004, да, Год постройки: 2004, Нет, Грузовых лифтов: 3, Отсутствует, нет, да, да, 1-комн, да, нет, дом 36, корпус 4, Нет, Не присвоен, Кол-во жилых помещений: 0, Перовская улица, 37.777023, 55.743451
Свяжитесь со мной на счет цены
10 дн.
O55S743451L37S777023O

На карте


Условия сделки

Источник


Старт продаж

Возможно заинтересует