Top.Mail.Ru

Южнобутовская ул., д. 12

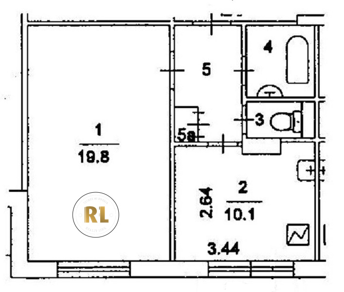
База каталог, Кол-во помещений: 169, нет, КОПЭ, Москва, Южное Бутово, Площадь парковки: 0, Пассажирский лифт: 4, От метро: 291, Юго-Западный, нет, Наименьшее кол-во этажей: 22, Наибольшее кол-во этажей: 22, Бульвар Адмирала Ушакова, Кол-во подъездов: 2, Год ввода в эксплуатацию: 2003, Кол-во нежилых помещений: 1, 1-комн, Кол-во жилых помещений: 168, дом 12, да, да, да, да, да, да, Имеется, Грузовых лифтов: 2, Год постройки: 2003, Южнобутовская улица, 37.539194, 55.543440
Свяжитесь со мной на счет цены
10 дн.
O55S543440L37S539194O

На карте


Условия сделки

Источник


Старт продаж

Возможно заинтересует