Top.Mail.Ru

улица Сталеваров, д. 20

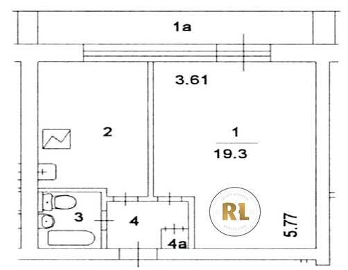
База каталог, Кол-во подъездов: 1, нет, II-68, Москва, Ивановское, Площадь парковки: 0, Нет, Пассажирский лифт: 1, От метро: 1610, Восточный, нет, Наименьшее кол-во этажей: 16, Наибольшее кол-во этажей: 16, Новогиреево, Кол-во помещений: 112, Кол-во нежилых помещений: 1, Год ввода в эксплуатацию: 1977, да, Год постройки: 1977, Нет, Грузовых лифтов: 1, Отсутствует, нет, нет, да, 1-комн, да, нет, дом 20, Нет, Не присвоен, Кол-во жилых помещений: 111, улица Сталеваров, 37.838917, 55.754725
10 170 000 Р
10 дн.
O55S754725L37S838917O
+

На карте


Условия сделки

Источник


Старт продаж