Top.Mail.Ru

улица Сталеваров, д. 16

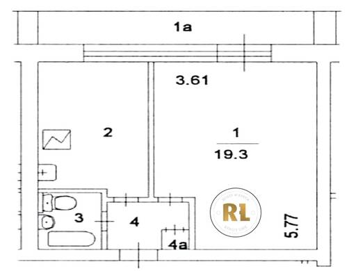
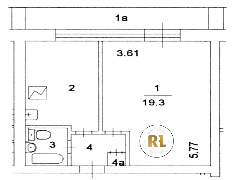
База каталог, Кол-во подъездов: 1, нет, II-68, Москва, Ивановское, Площадь парковки: 0, Нет, Пассажирский лифт: 1, От метро: 1720, Восточный, нет, Наименьшее кол-во этажей: 16, Наибольшее кол-во этажей: 16, Новогиреево, Кол-во помещений: 112, Кол-во нежилых помещений: 1, Год ввода в эксплуатацию: 1978, да, Год постройки: 1978, Нет, Грузовых лифтов: 1, Отсутствует, нет, нет, да, 1-комн, да, нет, дом 16, Нет, Не присвоен, Кол-во жилых помещений: 111, улица Сталеваров, 37.839007, 55.756462
Свяжитесь со мной на счет цены
10 дн.
O55S756462L37S839007O

На карте


Условия сделки

Источник


Старт продаж

Возможно заинтересует