Top.Mail.Ru

улица Молостовых, д. 10, к. 1

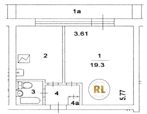
База каталог, Кол-во подъездов: 3, нет, II-68, Москва, Ивановское, Площадь парковки: 0, Нет, Пассажирский лифт: 3, От метро: 1700, Восточный, нет, Наименьшее кол-во этажей: 12, Наибольшее кол-во этажей: 12, Новогиреево, Кол-во помещений: 169, Кол-во нежилых помещений: 1, Год ввода в эксплуатацию: 1974, 1-комн, Кол-во жилых помещений: 168, Не присвоен, Нет, дом 10, корпус 1, нет, да, да, да, нет, нет, Грузовых лифтов: 3, Нет, Год постройки: 1974, улица Молостовых, 37.831794, 55.759978
Свяжитесь со мной на счет цены
10 дн.
O55S759978L37S831794O

На карте


Условия сделки

Источник


Старт продаж

Возможно заинтересует