Top.Mail.Ru

улица Молостовых, д. 10, к. 3

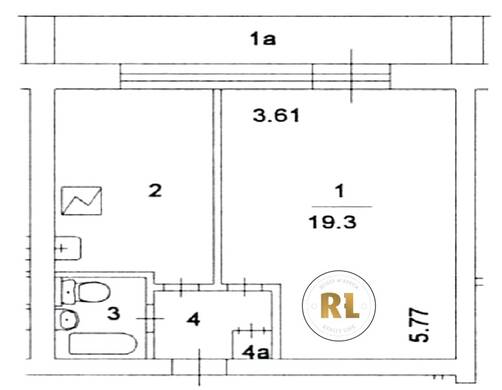
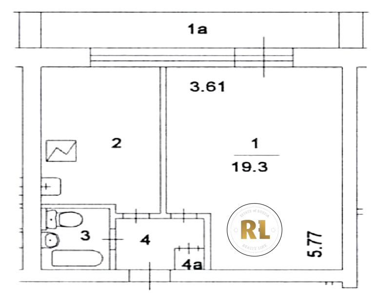
База каталог, Кол-во подъездов: 3, нет, II-68, Москва, Ивановское, Площадь парковки: 0, Нет, Пассажирский лифт: 3, От метро: 1480, Восточный, нет, Наименьшее кол-во этажей: 12, Наибольшее кол-во этажей: 12, Новогиреево, Кол-во помещений: 169, Кол-во нежилых помещений: 1, Год ввода в эксплуатацию: 1974, да, Год постройки: 1974, Нет, Грузовых лифтов: 3, Отсутствует, нет, да, да, 1-комн, да, нет, дом 10, корпус 3, Нет, Не присвоен, Кол-во жилых помещений: 168, улица Молостовых, 37.828802, 55.761062
Свяжитесь со мной на счет цены
10 дн.
O55S761062L37S828802O

На карте


Условия сделки

Источник


Старт продаж

Возможно заинтересует