Top.Mail.Ru

Саянская ул., д. 4

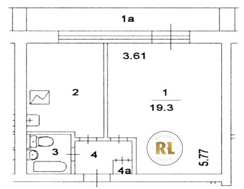
База каталог, Кол-во подъездов: 2, нет, II-68, Москва, Ивановское, Площадь парковки: 0, Нет, Пассажирский лифт: 2, От метро: 1900, Восточный, нет, Наименьшее кол-во этажей: 16, Наибольшее кол-во этажей: 16, Новогиреево, Кол-во помещений: 208, Кол-во нежилых помещений: 1, Год ввода в эксплуатацию: 1975, да, Год постройки: 1975, Нет, Грузовых лифтов: 2, Отсутствует, нет, нет, да, 1-комн, да, нет, дом 4, Нет, Не присвоен, Кол-во жилых помещений: 207, Саянская улица, 37.825416, 55.766481
Свяжитесь со мной на счет цены
10 дн.
O55S766481L37S825416O

На карте


Условия сделки

Источник


Старт продаж

Возможно заинтересует