Top.Mail.Ru

улица Знаменские Садки, д. 11

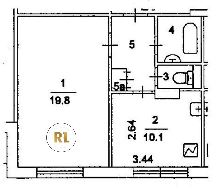
База каталог, Кол-во подъездов: 3, нет, Имеется, КОПЭ, Москва, Северное Бутово, Нет, Пассажирский лифт: 6, От метро: 790, Юго-Западный, да, Наименьшее кол-во этажей: 1, Наибольшее кол-во этажей: 22, Улица Старокачаловская, Кол-во помещений: 255, Кол-во нежилых помещений: 4, Год ввода в эксплуатацию: 1990, да, Год постройки: 1990, Нет, Грузовых лифтов: 3, Имеется, да, да, да, 1-комн, да, нет, дом 11, Нет, Не присвоен, Кол-во жилых помещений: 251, улица Знаменские Садки, 37.567428, 55.573688
Свяжитесь со мной на счет цены
10 дн.
O55S573688L37S567428O

На карте


Условия сделки

Источник


Старт продаж

Возможно заинтересует