Top.Mail.Ru

Строгинский бульвар, д. 23

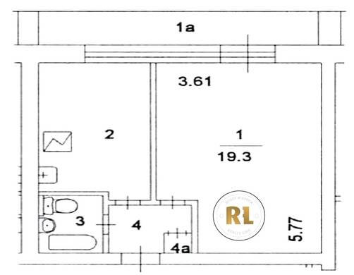
База каталог, Пассажирский лифт: 3, Строгино, Наибольшее кол-во этажей: 22, Наименьшее кол-во этажей: 22, нет, Северо-Западный, От метро: 148, Нет, Кол-во подъездов: 1, Площадь парковки: 0, Строгино, Москва, II-68, Отсутствует, нет, Кол-во помещений: 105, Кол-во нежилых помещений: 0, Год ввода в эксплуатацию: 1982, да, Год постройки: 1982, Нет, Грузовых лифтов: 0, Имеется, да, да, да, 1-комн, да, да, дом 23, Нет, Не присвоен, Кол-во жилых помещений: 105, Строгинский бульвар, 37.407438, 55.803484
Свяжитесь со мной на счет цены
10 дн.
O55S803484L37S407438O

На карте


Условия сделки

Источник


Старт продаж

Возможно заинтересует