Top.Mail.Ru

город Московский, Радужная ул., д. 15

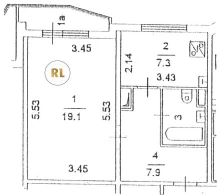
База каталог, Пассажирский лифт: 2, Филатов Луг, Наибольшее кол-во этажей: 17, Наименьшее кол-во этажей: 17, нет, Новомосковский, От метро: 3300, Нет, Кол-во подъездов: 2, Площадь парковки: 0, Московский, Москва, П-44T, Отсутствует, да, Кол-во помещений: 131, Кол-во нежилых помещений: 3, Год ввода в эксплуатацию: 2008, нет, Год постройки: 2008, Нет, Грузовых лифтов: 2, Отсутствует, нет, нет, нет, 1-комн, нет, нет, дом 15, Нет, Не присвоен, Кол-во жилых помещений: 128, город Московский, Радужная улица, 37.376060, 55.590129
Свяжитесь со мной на счет цены
10 дн.
O55S590129L37S376060O

На карте


Условия сделки

Источник


Старт продаж

Возможно заинтересует