Top.Mail.Ru

Щелковский проезд, д. 2

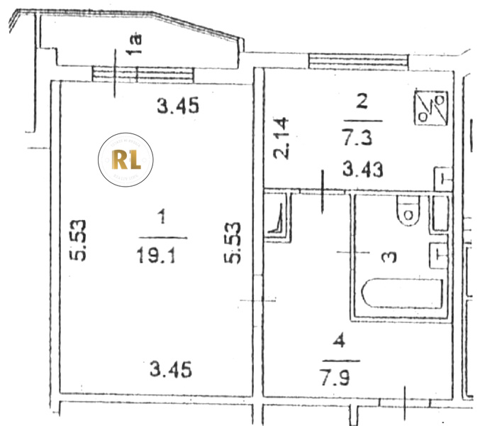
База каталог, Пассажирский лифт: 5, Щёлковская, Наибольшее кол-во этажей: 14, Наименьшее кол-во этажей: 14, нет, Восточный, От метро: 1500, Нет, Кол-во подъездов: 5, Площадь парковки: 0, Северное Измайлово, Москва, П-44T, Отсутствует, нет, Кол-во помещений: 269, Кол-во нежилых помещений: 3, Год ввода в эксплуатацию: 2006, да, Год постройки: 2006, Нет, Грузовых лифтов: 5, Отсутствует, нет, да, да, 1-комн, да, нет, дом 2, Нет, Не присвоен, Кол-во жилых помещений: 266, Щелковский проезд, 37.779224, 55.806211
Свяжитесь со мной на счет цены
10 дн.
O55S806211L37S779224O

На карте


Условия сделки

Источник


Старт продаж

Возможно заинтересует