Top.Mail.Ru

Щелковское шоссе, д. 77, к. 3

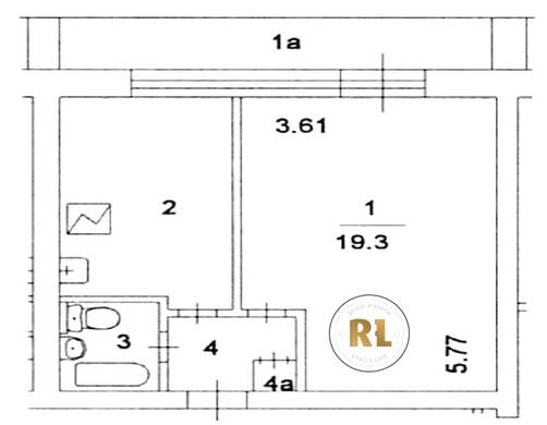
База каталог, Кол-во подъездов: 1, нет, Отсутствует, II-68-01, Москва, Гольяново, Пассажирский лифт: 1, От метро: 720, Восточный, да, Наименьшее кол-во этажей: 16, Наибольшее кол-во этажей: 16, Щёлковская, Кол-во помещений: 116, Кол-во нежилых помещений: 5, Год ввода в эксплуатацию: 1980, 1-комн, Кол-во жилых помещений: 111, Да, дом 77, корпус 3, нет, да, да, да, да, да, Отсутствует, Грузовых лифтов: 1, Год постройки: 1980, Щелковское шоссе, 37.806075, 55.812803
Свяжитесь со мной на счет цены
10 дн.
O55S812803L37S806075O

На карте


Условия сделки

Источник


Старт продаж

Возможно заинтересует