Top.Mail.Ru

бульвар Яна Райниса, д. 41, к. 2

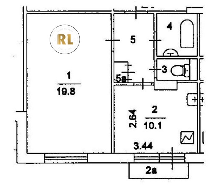
База каталог, Пассажирский лифт: 4, Сходненская, Наибольшее кол-во этажей: 22, Наименьшее кол-во этажей: 22, да, Северо-Западный, От метро: 1930, Нет, Кол-во подъездов: 2, Площадь парковки: 1480, Южное Тушино, Москва, КОПЭ, Отсутствует, нет, Кол-во помещений: 173, Кол-во нежилых помещений: 0, Год ввода в эксплуатацию: 1985, да, Год постройки: 1985, Нет, Грузовых лифтов: 2, Имеется, нет, нет, да, 1-комн, да, нет, дом 41, корпус 2, Нет, Не присвоен, Кол-во жилых помещений: 173, бульвар Яна Райниса, 37.411427, 55.849282
Свяжитесь со мной на счет цены
10 дн.
O55S849282L37S411427O

На карте


Условия сделки

Источник


Старт продаж

Возможно заинтересует