Top.Mail.Ru

Ярославское шоссе, д. 55

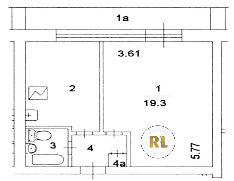
База каталог, Кол-во помещений: 209, нет, II-68, Москва, Ярославский, Площадь парковки: 0, Нет, Пассажирский лифт: 2, От метро: 2110, Северо-Восточный, нет, Наименьшее кол-во этажей: 1, Наибольшее кол-во этажей: 16, Бабушкинская, Кол-во подъездов: 2, Год ввода в эксплуатацию: 1975, Кол-во нежилых помещений: 3, 1-комн, Кол-во жилых помещений: 206, Нет, дом 55, нет, да, да, нет, нет, нет, Грузовых лифтов: 2, Нет, Год постройки: 1975, Ярославское шоссе, 37.691773, 55.861989
Свяжитесь со мной на счет цены
10 дн.
O55S861989L37S691773O

На карте


Условия сделки

Источник


Старт продаж

Возможно заинтересует