Top.Mail.Ru

Фестивальная ул., д. 46, к. 3

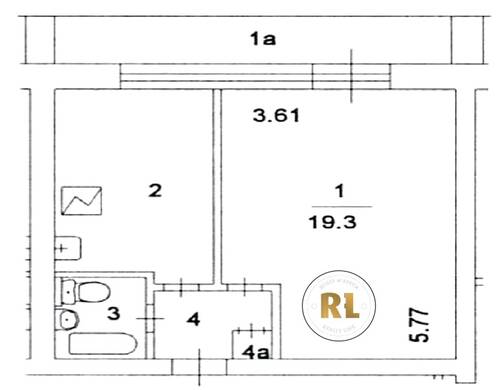
База каталог, Кол-во подъездов: 1, нет, II-68, Москва, Головинский, Площадь парковки: 0, Нет, Пассажирский лифт: 1, От метро: 2600, Северный, нет, Наименьшее кол-во этажей: 16, Наибольшее кол-во этажей: 16, Беломорская, Кол-во помещений: 111, Кол-во нежилых помещений: 0, Год ввода в эксплуатацию: 1984, 1-комн, Кол-во жилых помещений: 111, E, Нет, дом 46, корпус 3, нет, да, нет, нет, нет, нет, Грузовых лифтов: 1, Нет, Год постройки: 1984, Фестивальная улица, 37.512568, 55.863586
Свяжитесь со мной на счет цены
10 дн.
O55S863586L37S512568O

На карте


Условия сделки

Источник


Старт продаж

Возможно заинтересует