Top.Mail.Ru

Ясеневая ул., д. 33, к. 1

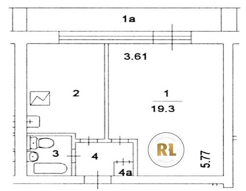
База каталог, Кол-во помещений: 263, нет, II-68, Москва, Орехово-Борисово Южное, Пассажирский лифт: 5, От метро: 820, Южный, да, Наименьшее кол-во этажей: 12, Наибольшее кол-во этажей: 12, Зябликово, Кол-во подъездов: 5, Год ввода в эксплуатацию: 1977, Кол-во нежилых помещений: 0, 1-комн, Кол-во жилых помещений: 263, дом 33, корпус 1, нет, да, да, да, да, да, Грузовых лифтов: 5, Год постройки: 1977, Ясеневая улица, 37.739447, 55.605485
Свяжитесь со мной на счет цены
10 дн.
O55S605485L37S739447O

На карте


Условия сделки

Источник


Старт продаж

Возможно заинтересует