Top.Mail.Ru

улица Свободы, д. 91, к. 2

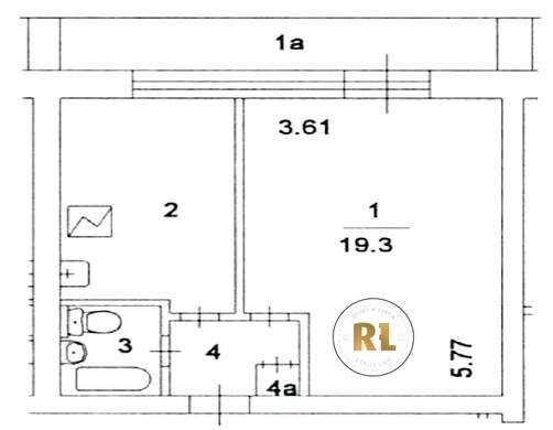
База каталог, Пассажирский лифт: 2, Планерная, Наибольшее кол-во этажей: 22, Наименьшее кол-во этажей: 22, нет, Северо-Западный, От метро: 1100, Нет, Кол-во подъездов: 1, Площадь парковки: 0, Северное Тушино, Москва, II-68, Имеется, нет, Кол-во помещений: 173, Кол-во нежилых помещений: 3, Год ввода в эксплуатацию: 1991, да, Год постройки: 1991, Нет, Грузовых лифтов: 2, Имеется, нет, да, да, 1-комн, да, нет, дом 91, корпус 2, Нет, Не присвоен, Кол-во жилых помещений: 170, улица Свободы, 37.444997, 55.867743
Свяжитесь со мной на счет цены
10 дн.
O55S867743L37S444997O

На карте


Условия сделки

Источник


Старт продаж

Возможно заинтересует