Мой профиль
Заказы
Список сравнения
Запросы на возврат
Избранное
Отслеживание заказа
Отслеживание заказа
Антибот
Войти
Регистрация
E-mail
Пароль
Забыли пароль?
Создать учетную запись
Антибот
Войти
Запомнить
8(903)-
540-97-84
Пн-Пт: 9:00-18:00
Заказать обратный звонок
Избранное пусто
Избранное пусто
Подборка
Назначить просмотр
Меню
Продавцу
Покупателю
Сдать в аренду
Выкуп квартир
База знаний
Обзоры ЖК
Обзоры жилых комплексов ВАО
Обзоры жилых комплексов ЗелАО
Обзоры жилых комплексов НАО
Обзоры жилых комплексов САО
Обзоры жилых комплексов СВАО
Обзоры жилых комплексов ТАО
Обзоры жилых комплексов ЦАО
Обзоры жилых комплексов СЗАО
Обзоры жилых комплексов ЮАО
Обзоры жилых комплексов ЮЗАО
Обзоры жилых комплексов ЗАО
Обзоры жилых комплексов ЮВАО
Главная
/
Коммерческая недвижимость
/
Телецентр Останкино
/
АСК-1
/
Блоки
/
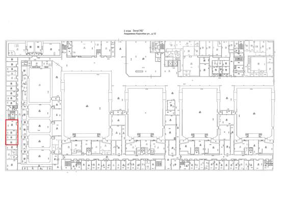
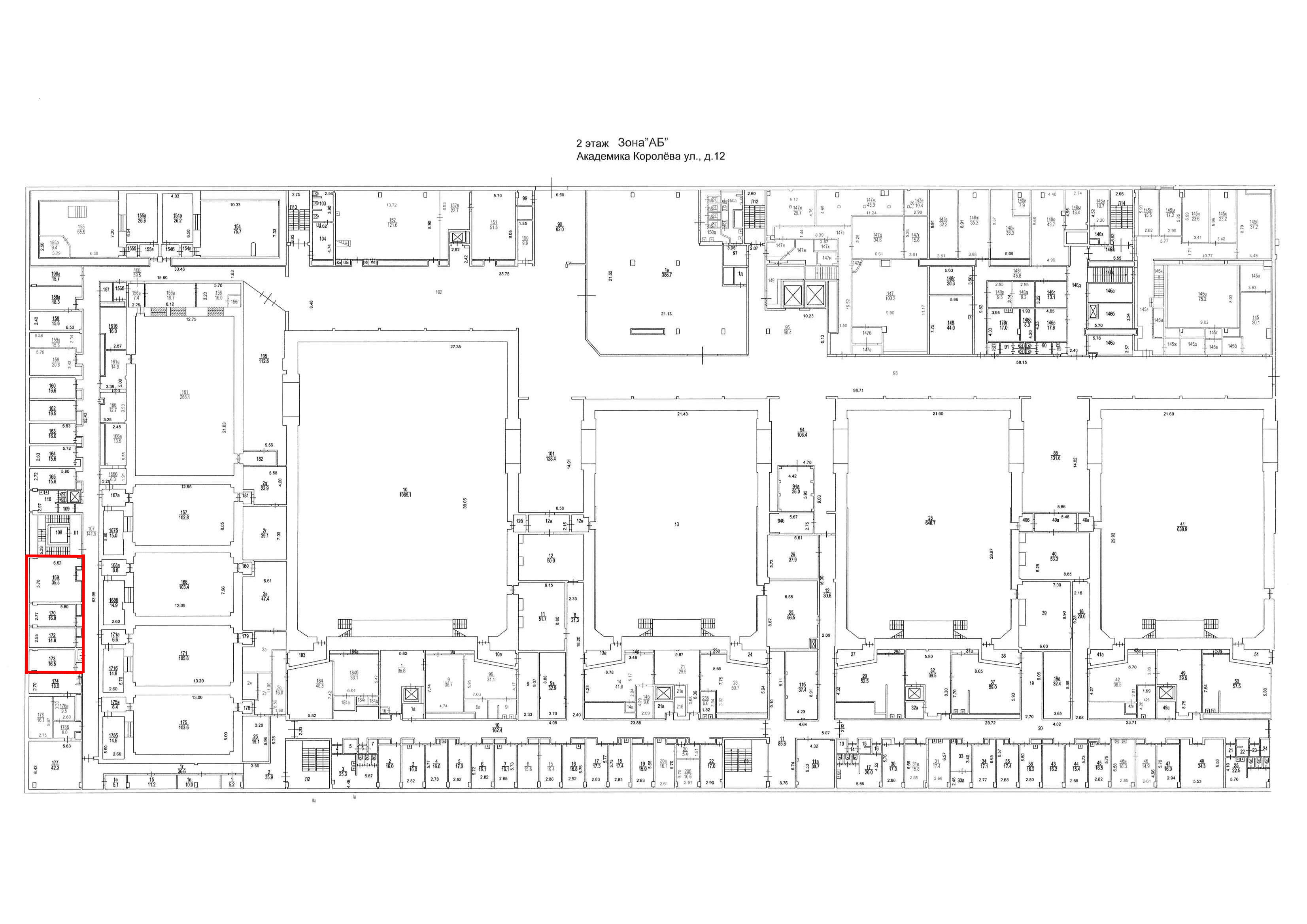
Блок 4/2 (84,6 м2)
53
из
78
Блок 4/2 (84,6 м2)
Количество рабочих мест: 14, Этаж блока: 2
КОД:
id-313-0009