Top.Mail.Ru

Зеленоградская ул., д. 33, к. 7

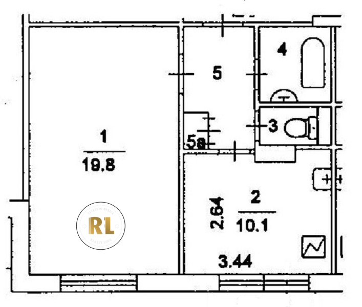
База каталог, Пассажирский лифт: 4, Ховрино, Наибольшее кол-во этажей: 22, Наименьшее кол-во этажей: 22, нет, Северный, От метро: 680, Нет, Кол-во подъездов: 2, Площадь парковки: 0, Ховрино, Москва, КОПЭ, Отсутствует, нет, Кол-во помещений: 174, Кол-во нежилых помещений: 0, Год ввода в эксплуатацию: 2002, да, Год постройки: 2002, Нет, Грузовых лифтов: 2, Имеется, да, да, да, 1-комн, да, нет, дом 33, корпус 7, Нет, D, Кол-во жилых помещений: 174, Зеленоградская улица, 37.487317, 55.873314
Свяжитесь со мной на счет цены
10 дн.
O55S873314L37S487317O

На карте


Условия сделки

Источник


Старт продаж

Возможно заинтересует