Top.Mail.Ru

Ясный проезд, д. 26, к. 3

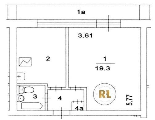
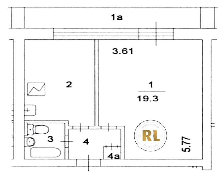
База каталог, Пассажирский лифт: 1, Отрадное, Наибольшее кол-во этажей: 16, Наименьшее кол-во этажей: 16, нет, Северо-Восточный, От метро: 2010, Нет, Кол-во подъездов: 1, Площадь парковки: 0, Южное Медведково, Москва, II-68, Отсутствует, нет, Кол-во помещений: 109, Кол-во нежилых помещений: 0, Год ввода в эксплуатацию: 1984, да, Год постройки: 1984, Нет, Грузовых лифтов: 1, Имеется, нет, нет, да, 1-комн, да, нет, дом 26, корпус 3, Нет, Не присвоен, Кол-во жилых помещений: 109, Ясный проезд, 37.621130, 55.875824
Свяжитесь со мной на счет цены
10 дн.
O55S875824L37S621130O

На карте


Условия сделки

Источник


Старт продаж

Возможно заинтересует