Top.Mail.Ru

улица Малыгина, д. 1

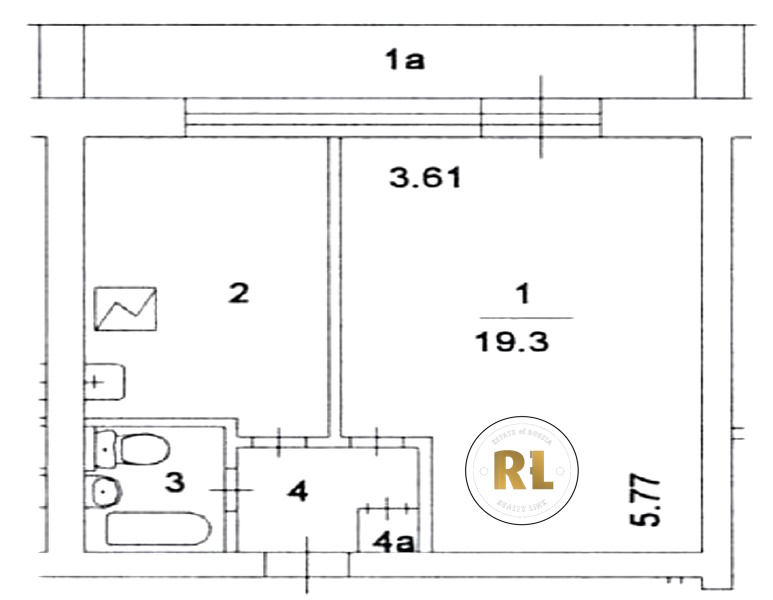
База каталог, Кол-во подъездов: 1, нет, II-68, Москва, Лосиноостровский, Площадь парковки: 0, Нет, Пассажирский лифт: 1, От метро: 2940, Северо-Восточный, нет, Наименьшее кол-во этажей: 16, Наибольшее кол-во этажей: 16, Бабушкинская, Кол-во помещений: 111, Кол-во нежилых помещений: 0, Год ввода в эксплуатацию: 1982, 1-комн, Кол-во жилых помещений: 111, Не присвоен, Нет, дом 1, нет, да, нет, нет, нет, нет, Грузовых лифтов: 1, Нет, Год постройки: 1982, улица Малыгина, 37.701834, 55.875996
Свяжитесь со мной на счет цены
10 дн.
O55S875996L37S701834O

На карте


Условия сделки

Источник


Старт продаж

Возможно заинтересует