Top.Mail.Ru

улица Тихомирова, д. 1

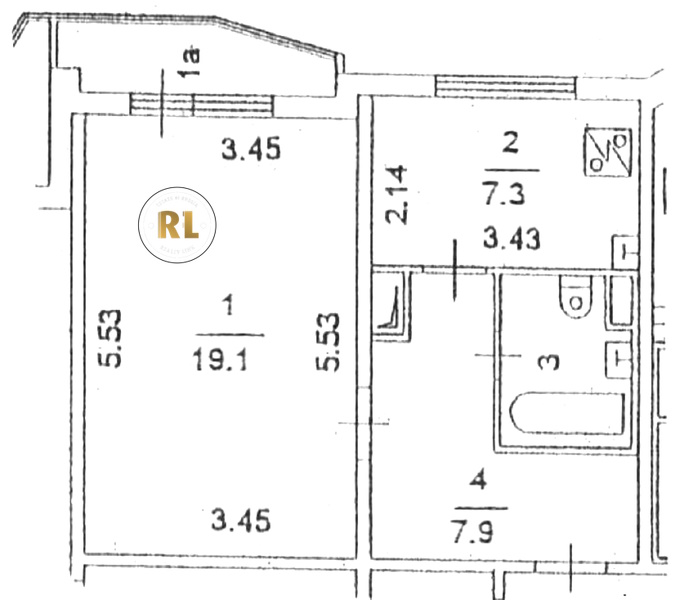
База каталог, Пассажирский лифт: 5, Медведково, Наибольшее кол-во этажей: 14, Наименьшее кол-во этажей: 14, нет, Северо-Восточный, От метро: 1150, Нет, Кол-во подъездов: 5, Площадь парковки: 0, Северное Медведково, Москва, П-44T, Имеется, нет, Кол-во помещений: 269, Кол-во нежилых помещений: 6, Год ввода в эксплуатацию: 2003, да, Год постройки: 2003, Нет, Грузовых лифтов: 5, Имеется, нет, да, да, 1-комн, да, нет, дом 1, Нет, Не присвоен, Кол-во жилых помещений: 263, улица Тихомирова, 37.645770, 55.883550
Свяжитесь со мной на счет цены
10 дн.
O55S883550L37S645770O

На карте


Условия сделки

Источник


Старт продаж

Возможно заинтересует