Top.Mail.Ru

улица Тихомирова, д. 7

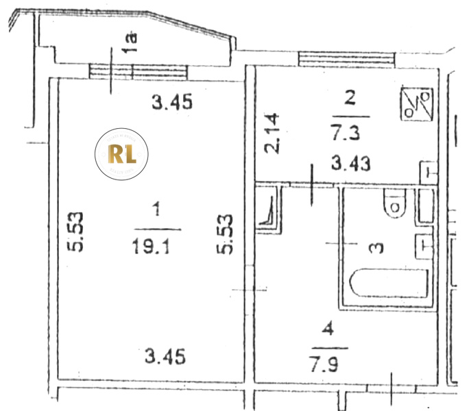
База каталог, Пассажирский лифт: 5, Медведково, Наибольшее кол-во этажей: 12, Наименьшее кол-во этажей: 12, нет, Северо-Восточный, От метро: 1090, Нет, Кол-во подъездов: 5, Площадь парковки: 0, Северное Медведково, Москва, П-44T, Имеется, нет, Кол-во помещений: 241, Кол-во нежилых помещений: 6, Год ввода в эксплуатацию: 2004, да, Год постройки: 2004, Нет, Грузовых лифтов: 5, Имеется, да, да, да, 1-комн, да, нет, дом 7, Нет, Не присвоен, Кол-во жилых помещений: 235, улица Тихомирова, 37.647100, 55.885711
Свяжитесь со мной на счет цены
10 дн.
O55S885711L37S647100O

На карте


Условия сделки

Источник


Старт продаж

Возможно заинтересует