Top.Mail.Ru

Клязьминская ул., д. 32, к. 3

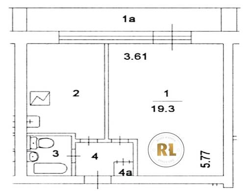
База каталог, Кол-во подъездов: 1, да, II-68, Москва, Дмитровский, Площадь парковки: 365, Пассажирский лифт: 2, От метро: 3500, Северный, да, Наименьшее кол-во этажей: 16, Наибольшее кол-во этажей: 16, Селигерская, Кол-во помещений: 112, Кол-во нежилых помещений: 1, Год ввода в эксплуатацию: 1981, 1-комн, Кол-во жилых помещений: 111, D, дом 32, корпус 3, нет, нет, нет, нет, нет, нет, Имеется, Грузовых лифтов: 0, Год постройки: 1981, Клязьминская улица, 37.532717, 55.893945
Свяжитесь со мной на счет цены
10 дн.
O55S893945L37S532717O

На карте


Условия сделки

Источник


Старт продаж

Возможно заинтересует