Top.Mail.Ru

Изюмская ул., д. 46, к. 1

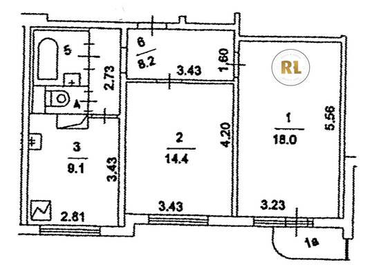
База каталог, Кол-во подъездов: 2, П-3M, Москва, Южное Бутово, Площадь парковки: 172, Пассажирский лифт: 2, От метро: 630, Юго-Западный, да, Наименьшее кол-во этажей: 12, Наибольшее кол-во этажей: 12, Улица Скобелевская, Кол-во помещений: 96, Кол-во нежилых помещений: 0, Год ввода в эксплуатацию: 2000, 2-комн, Кол-во жилых помещений: 96, Не присвоен, дом 46, корпус 1, нет, да, да, да, да, да, Грузовых лифтов: 2, Год постройки: 2000, Изюмская улица, 37.560844, 55.544937
Свяжитесь со мной на счет цены
10 дн.
D55S544937L37S560844D

На карте


Условия сделки

Источник


Старт продаж

Возможно заинтересует