Top.Mail.Ru

Бирюлевская ул., д. 46

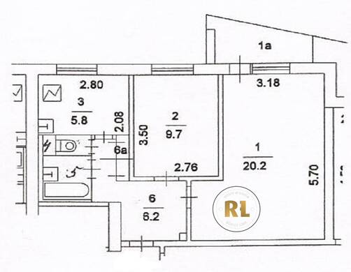
База каталог, Кол-во помещений: 215, I-515, Москва, Бирюлево Восточное, Пассажирский лифт: 6, Южный, да, Наименьшее кол-во этажей: 1, Наибольшее кол-во этажей: 9, Кол-во подъездов: 6, Год ввода в эксплуатацию: 1974, Кол-во нежилых помещений: 0, 2-комн, Кол-во жилых помещений: 215, D, дом 46, Имеется, Грузовых лифтов: 0, Год постройки: 1974, Бирюлевская улица, 37.664860, 55.585911
Свяжитесь со мной на счет цены
10 дн.
D55S585911L37S664860D

На карте


Условия сделки

Источник


Старт продаж

Возможно заинтересует