Top.Mail.Ru

Шипиловский проезд, д. 67, к. 1

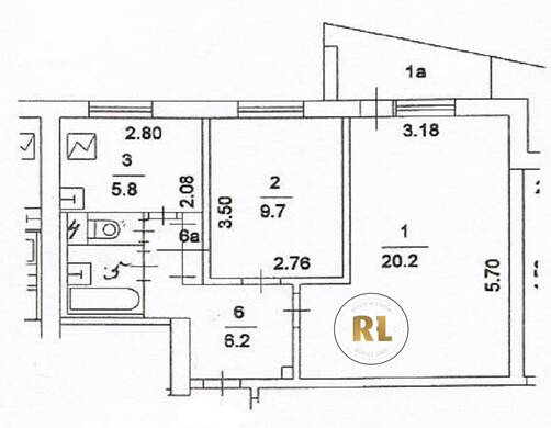
База каталог, Кол-во подъездов: 2, I-515, Москва, Орехово-Борисово Южное, Пассажирский лифт: 2, От метро: 1600, Южный, да, Наименьшее кол-во этажей: 9, Наибольшее кол-во этажей: 9, Домодедовская, Кол-во помещений: 178, Кол-во нежилых помещений: 0, Год ввода в эксплуатацию: 1976, 2-комн, Кол-во жилых помещений: 178, дом 67, корпус 1, нет, да, да, да, нет, нет, Грузовых лифтов: 0, Год постройки: 1976, Шипиловский проезд, 37.714860, 55.598665
Свяжитесь со мной на счет цены
10 дн.
D55S598665L37S714860D

На карте


Условия сделки

Источник


Старт продаж

Возможно заинтересует