Top.Mail.Ru

Ясеневая ул., д. 10, к. 2

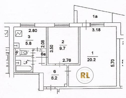
База каталог, Кол-во подъездов: 10, Отсутствует, I-515, Москва, Орехово-Борисово Южное, Площадь парковки: 0, Пассажирский лифт: 10, От метро: 1390, Южный, нет, Наименьшее кол-во этажей: 1, Наибольшее кол-во этажей: 9, Домодедовская, Кол-во помещений: 359, Кол-во нежилых помещений: 1, Год ввода в эксплуатацию: 1977, 2-комн, Кол-во жилых помещений: 358, В, дом 10, корпус 2, нет, да, да, да, да, нет, Отсутствует, Грузовых лифтов: 0, Год постройки: 1977, Ясеневая улица, 37.720286, 55.598782
Свяжитесь со мной на счет цены
10 дн.
D55S598782L37S720286D

На карте


Условия сделки

Источник


Старт продаж

Возможно заинтересует