Top.Mail.Ru

Ясеневая ул., д. 4

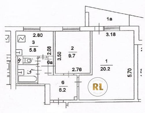
База каталог, Кол-во подъездов: 6, Имеется, I-515, Москва, Орехово-Борисово Южное, Пассажирский лифт: 6, От метро: 1420, Южный, да, Наименьшее кол-во этажей: 9, Наибольшее кол-во этажей: 9, Домодедовская, Кол-во помещений: 215, Кол-во нежилых помещений: 0, Год ввода в эксплуатацию: 1975, 2-комн, Кол-во жилых помещений: 215, дом 4, нет, да, да, да, да, нет, Имеется, Грузовых лифтов: 0, Год постройки: 1975, Ясеневая улица, 37.715839, 55.599346
Свяжитесь со мной на счет цены
10 дн.
D55S599346L37S715839D

На карте


Условия сделки

Источник


Старт продаж

Возможно заинтересует