Top.Mail.Ru

Елецкая ул., д. 31, к. 1

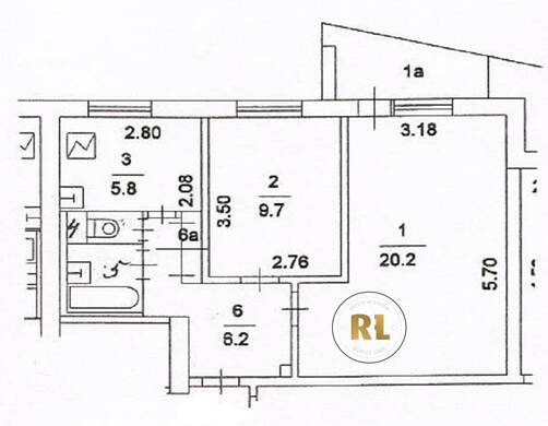
База каталог, Кол-во подъездов: 8, I-515, Москва, Орехово-Борисово Южное, Пассажирский лифт: 8, От метро: 1290, Южный, да, Наименьшее кол-во этажей: 9, Наибольшее кол-во этажей: 9, Зябликово, Кол-во помещений: 280, Кол-во нежилых помещений: 0, Год ввода в эксплуатацию: 1979, 2-комн, Кол-во жилых помещений: 280, дом 31, корпус 1, нет, да, да, да, да, нет, Грузовых лифтов: 0, Год постройки: 1979, Елецкая улица, 37.736437, 55.602342
Свяжитесь со мной на счет цены
10 дн.
D55S602342L37S736437D

На карте


Условия сделки

Источник


Старт продаж

Возможно заинтересует