Top.Mail.Ru

Ясеневая ул., д. 32, к. 2

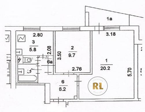
База каталог, Кол-во подъездов: 6, I-515, Москва, Орехово-Борисово Южное, Пассажирский лифт: 6, От метро: 1100, Южный, да, Наименьшее кол-во этажей: 9, Наибольшее кол-во этажей: 9, Зябликово, Кол-во помещений: 215, Кол-во нежилых помещений: 0, Год ввода в эксплуатацию: 1980, 2-комн, Кол-во жилых помещений: 215, дом 32, корпус 2, нет, да, да, да, да, нет, Грузовых лифтов: 0, Год постройки: 1980, Ясеневая улица, 37.742214, 55.603064
10 200 000 Р
10 дн.
D55S603064L37S742214D
+

На карте


Условия сделки

Источник


Старт продаж