Top.Mail.Ru

Шипиловский проезд, д. 59, к. 2

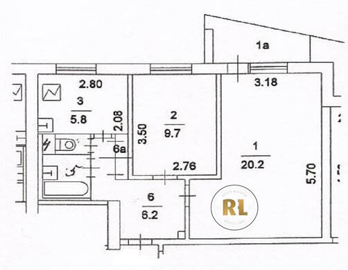
База каталог, Кол-во подъездов: 12, I-515, Москва, Орехово-Борисово Южное, Пассажирский лифт: 12, От метро: 1000, Южный, да, Наименьшее кол-во этажей: 9, Наибольшее кол-во этажей: 9, Домодедовская, Кол-во помещений: 431, Кол-во нежилых помещений: 0, Год ввода в эксплуатацию: 1974, 2-комн, Кол-во жилых помещений: 431, дом 59, корпус 2, нет, да, да, да, да, да, Грузовых лифтов: 0, Год постройки: 1974, Шипиловский проезд, 37.706676, 55.605999
10 000 000 Р
10 дн.
D55S605999L37S706676D
+

На карте


Условия сделки

Источник


Старт продаж