Top.Mail.Ru

Ясногорская ул., д. 7

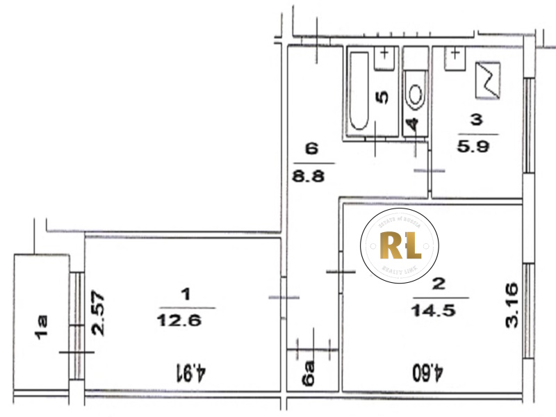
База каталог, Кол-во подъездов: 9, Имеется, II-49Д, Москва, Ясенево, Площадь парковки: 0, Пассажирский лифт: 9, От метро: 530, Юго-Западный, нет, Наименьшее кол-во этажей: 9, Наибольшее кол-во этажей: 9, Ясенево, Кол-во помещений: 322, Кол-во нежилых помещений: 4, Год ввода в эксплуатацию: 1978, 2-комн, Кол-во жилых помещений: 318, Не присвоен, дом 7, да, да, да, да, да, да, Имеется, Грузовых лифтов: 0, Год постройки: 1978, Ясногорская улица, 37.538817, 55.608973
Свяжитесь со мной на счет цены
10 дн.
D55S608973L37S538817D

На карте


Условия сделки

Источник


Старт продаж

Возможно заинтересует