Top.Mail.Ru

улица Рокотова, д. 7, к. 2

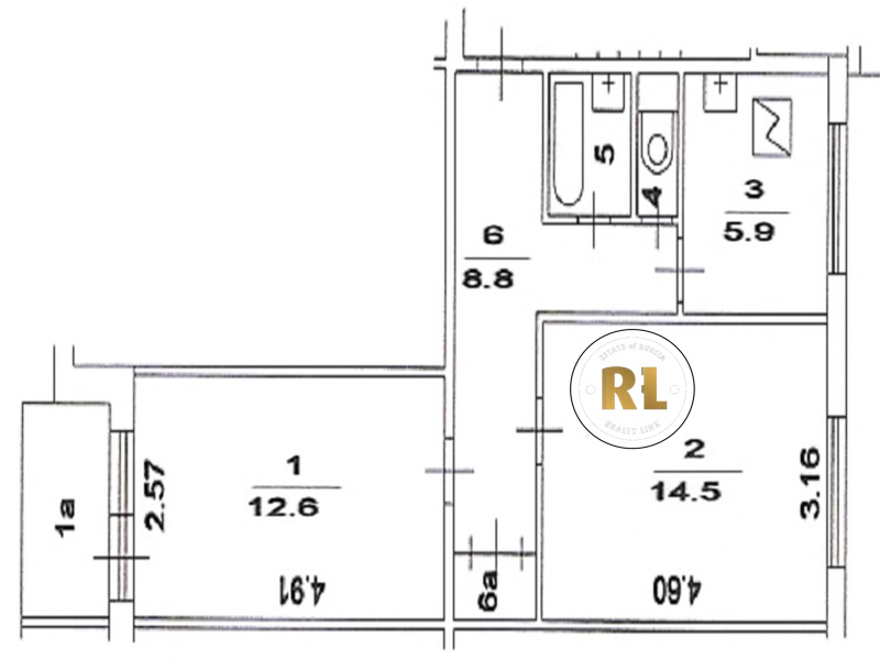
База каталог, Кол-во подъездов: 15, Имеется, II-49Д, Москва, Ясенево, Площадь парковки: 0, Пассажирский лифт: 15, От метро: 1080, Юго-Западный, нет, Наименьшее кол-во этажей: 9, Наибольшее кол-во этажей: 9, Новоясеневская, Кол-во помещений: 533, Кол-во нежилых помещений: 0, Год ввода в эксплуатацию: 1978, 2-комн, Кол-во жилых помещений: 533, Не присвоен, дом 7, корпус 2, нет, да, да, да, да, да, Имеется, Грузовых лифтов: 0, Год постройки: 1978, улица Рокотова, 37.549768, 55.609482
Свяжитесь со мной на счет цены
10 дн.
D55S609482L37S549768D

На карте


Условия сделки

Источник


Старт продаж

Возможно заинтересует