Top.Mail.Ru

Воронежская ул., д. 34, к. 1

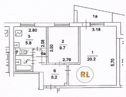
База каталог, Кол-во подъездов: 2, I-515, Москва, Орехово-Борисово Южное, Пассажирский лифт: 2, От метро: 440, Южный, да, Наименьшее кол-во этажей: 9, Наибольшее кол-во этажей: 9, Зябликово, Кол-во помещений: 72, Кол-во нежилых помещений: 0, Год ввода в эксплуатацию: 1977, 2-комн, Кол-во жилых помещений: 72, дом 34, корпус 1, да, да, да, да, да, да, Грузовых лифтов: 0, Год постройки: 1977, Воронежская улица, 37.739635, 55.609751
Свяжитесь со мной на счет цены
10 дн.
D55S609751L37S739635D

На карте


Условия сделки

Источник


Старт продаж

Возможно заинтересует