Top.Mail.Ru

Чертановская ул., д. 31, к. 2

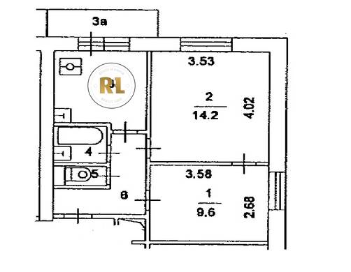
База каталог, Кол-во подъездов: 1, II-18/22, Москва, Чертаново Центральное, Пассажирский лифт: 2, От метро: 830, Южный, да, Наименьшее кол-во этажей: 0, Наибольшее кол-во этажей: 12, Пражская, Кол-во помещений: 84, Кол-во нежилых помещений: 0, Год ввода в эксплуатацию: 1970, 2-комн, Кол-во жилых помещений: 84, дом 31, корпус 2, нет, да, да, да, да, да, Грузовых лифтов: 0, Год постройки: 1970, Чертановская улица, 37.594962, 55.615268
Свяжитесь со мной на счет цены
10 дн.
D55S615268L37S594962D

На карте


Условия сделки

Источник


Старт продаж

Возможно заинтересует